越秀天玥位于琅山路和苹果园交口;距离的商业是京西大悦城,大约800米;距离6号线杨庄站600米、1号线苹果园站800米、包括s1号线。越秀天玥倾力钜献建面约80-115㎡品质两至三居、建面约134㎡奢阔四居,总层高7-11层洋房和15-18层小高层,全部为一梯两户、两梯两户。

随着三代同堂、五口之家、父母同住等家庭结构的不断变化,更需要灵活与足够包容的居住空间。越秀天玥建面约134㎡四居产品,以主城人居奢享理念,打造宽境四居室,温柔相待家的每一位成员!居室够多,才能更好构建自我与家庭的关系;客厅够阔,才装得下游戏的乐趣;阳台够大,生活才能更健康舒心;儿童房舒适静谧,带来甜蜜梦乡。
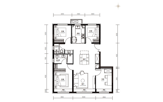
基于对多个家庭样本的洞察,越秀天玥约134㎡户型匠心构筑四室,使得每个人生活起居的私密性,皆能得到进一步保障。走过独立玄关进入室内,3居室+独立书房格局,主次卧休憩、客厅聚会等生活场景,真正做到了空间与生活的融合,满足一家人对动静功能的不同想象。特有的儿童房设计,独立空间,让未来小业主拥有难以忘怀的纯真童趣。约4m南向宽幕会客厅,使得空间天天享受“日光浴”。灿烂的光线铺洒更多的角落,同时满足每一位家人对于健康阳光的需求,焕新每日活力与心情!

作为家庭主人,被赋予无尽尊崇感。主卧套房设计,独立衣帽间、奢华卫浴间,宽敞主卧自带南向飘窗,享受阳光遍洒的同时,更融一城之美景。独立书房兼享宽敞飘窗,无论是与亲朋把酒言欢,亦或是独自品阅文字的美好,那满怀的温暖让生活怡然自得,更是给予工作便利感,夜晚加班不影响家人,静谧之中保障工作效率。
作为家庭待客空间,客餐厅相当于主人颜面,在家庭空间里占据重要地位。越秀天玥约134㎡户型阔绰客厅与餐厅的一体化搭配,形成双厅尺度,打造层峯社交场。LDK一体化的家,作为当今设计潮流的代表,给人们带来了更大的生活空间和更高的生活品质,不仅视觉效果优美,同时也实现了动线的缩短和空间的优化,同时兼顾功能区和家人情感上的互动。方正餐客空间一体,舒适的家庭交流区能承载一家人的欢声笑语。
越秀天玥承袭「天」系精工标准,精研人居细节,方方面面皆彰显匠心。全面宽飘窗,全面视野观景;独立家政空间,让洗衣机、吸尘器、洗地机有专属区域安放;卫生间镜柜“双镜”设计,满足收纳功能的同时兼顾生活习惯,镜柜上方补光灯开关,满足女主人优雅化妆需求。越秀天玥尊重每一位居住者的每一种生活习惯,甄选品牌精妆,将品质生活的考究融入日常生活的每一个细微之处。

作为生活的容器,大户型往往能够包裹内心的安定,舒展的格局与舒畅的动线体验,让生活在此得到延展。在醇熟主城的发展引力下,越秀天玥优势愈发凸显,有识之士纷至沓来,建面约134㎡四居产品,即将因领京西人居走向只臻至享的人居新境界!
越秀天玥售楼处电话:400-067-5800

编辑:售楼处