北清橡树湾别名:昌平橡树湾2026-02-06更新
品牌地产 品质楼盘 在售
北清橡树湾售楼处电话:400-067-5800

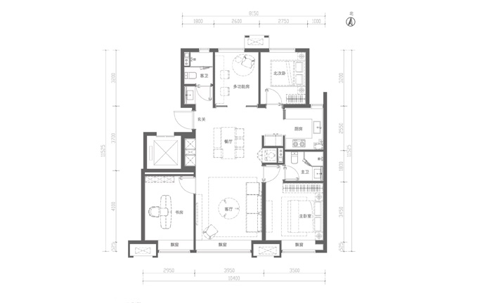
北清橡树湾无论从户型布局还是套内空间的使用率上讲,进步都比较大。北清橡树湾的户型面积从建面70多平到建面120平,上车价格400多万起,精准定位昌平购房人群。除了建面78平做成全南向户型以外,其他户型都是南北通透。建面106平能做到南向面宽9米5,建面126平南向面宽10米4,都是近一年才能见到的。
北清橡树湾占据的地理位置,是五道口的改善盘,不论是商业还是经济都是北京发达的核心区之一。北清橡树湾自持20万方的五彩购物商城,周边医疗配套完善,附近有清河奥林匹克公园、碧水风和公园、清河燕清体育文化公园,在工作之余有一个很适合放松休闲的区域。
北清橡树湾的另外一个优势本身是带装修交房,装修标准达到12000元/平。项目定位高端,内涵丰富以英式学院风格辅以景墙、雕塑等人文细节的园林为肌,以中山讲堂的人文渊薮为魄,只为更高人居理想,打造中国人文学府华宅。
再说说这个盘的缺点吧,北边挨着北清路比较吵,周边已经发展相当成熟,相对未来的进一步发展会受到局限。再一个因为项目的优势存在,相对新房不论是单价还是总价都比较高。周边已经发展相当成熟,相对未来的进一步发展受到很大的局限。

我们北清橡树湾开发商有线上团购的优惠,每周会有线上报团,根据人数会申请更多的优惠,报团的人越多,力度越大。请拨打售楼部电话:400-067-5800(线上团购优惠)

编辑:售楼处